29.09.25

zu vermieten: Moderne 4.5-Zimmerwohnung mit Loggia und Grünfläche

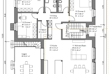
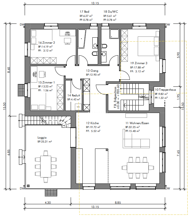
Ruhig gelegen auf Bauernhof (Erstbezug) - Arnen 1, 6103 Schwarzenberg - 4.5 Zimmer im EG| 125 m² Wohnfläche | 25 m2 Loggia | ca. 50 m2 Grünfläche
  • Verfügbar per 1. Januar 2026 oder nach Absprache
  • Mietzins: CHF 2’400.- (Brutto, inkl. Nebenkosten) | optional Garagenplatz für CHF 150.-

Die moderne und helle 4.5-Zimmerwohnung im Erdgeschoss eines Neubaus mit zwei Wohneinheiten verbindet stilvolles Wohnen mit naturnaher Idylle – perfekt für alle, die Ruhe und Natur schätzen, aber dennoch stadtnah wohnen möchten.

Die Wohnung befindet sich aktuell im Bau, jedoch können bereits Besichtigungen des aktuellen Baustands durchgeführt werden, um einen ersten Eindruck von der Raumaufteilung und der Bauqualität zu gewinnen.

Räume & Ausstattung

  • Grosszügiger Wohn-/Essbereich mit moderner, offener Küche (ca. 52 m²)
  • 3 helle Schlaf-/Arbeitszimmer
  • 2 stilvolle Badezimmer, 1x Dusche und 1x mit Badewanne
  • Reduit mit Waschmaschinenanschluss
  • Bodenheizung in allen Räumen

Aussenbereich & Umgebung

  • Privater Sitzplatz (Loggia) mit Abendsonne
  • Grünfläche zur eigenen Nutzung – ideal für Garten, Spielbereich oder Erholung
  • Ruhige, ländliche Lage – eingebettet in Natur und Landwirtschaft
  • Malerische Aussicht

Zusätzliche Räume & Infrastruktur

  • Grosszügiges Kellerabteil (13 m²)
  • Garagenplatz mit direktem Zugang ins Treppenhaus
  • Gemeinschaftliche Waschküche und Trocknungsraum (inkl. Waschmaschine und Tumbler)
  • Abstellplatz für Velo
Besichtigung & Kontakt
Haben wir Ihr Interesse geweckt? Gerne zeigen wir Ihnen die Wohnung bei einem persönlichen Besichtigungstermin. Kontaktieren Sie uns unter: christoph_fuchs@hotmail.com 079 218 32 57
Es wurden keine Bilder gefunden.